
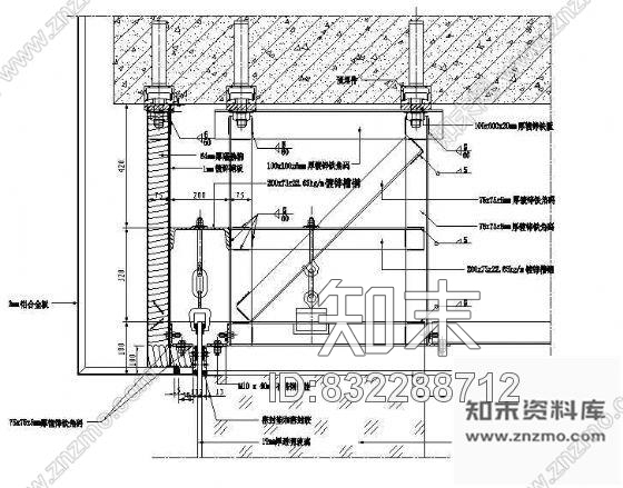
吊挂19mm厚玻璃节点CAD下载
ID: 832288712
复制
上传作者
317587219
317587219上传时间2019-02-01
文件大小0.42M
设计风格:其他
CAD版本:--
包含文件:CAD
授权普通
立即下载
收藏
分享
举报
相关推荐
综合
吊顶节点
GRG吊顶节点
方通吊顶
格栅吊顶
扣板吊顶
软膜天花
铝单板吊顶
石膏板吊顶
矿棉板吊顶

317587219上传时间2019-02-01
文件大小0.42M
设计风格:其他
CAD版本:--
包含文件:CAD
授权普通