CAD频道
CAD图库
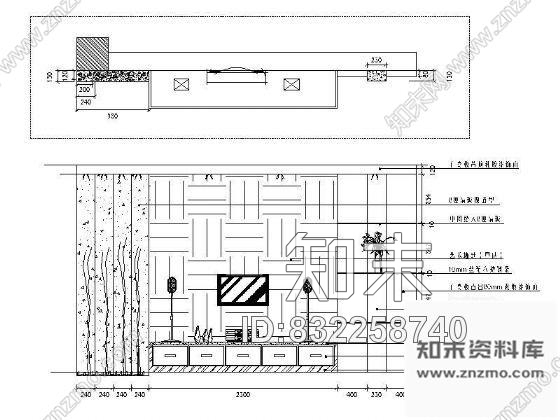
图块/节点两个电视墙立面设计 墙面通用节点
1/
2
Previous
Next
图块/节点两个电视墙立面设计CAD下载
ID: 832258740
复制
上传作者
136837786
上传时间
2019-02-01
文件大小
0.14M
设计风格:
其他
CAD版本:
--
包含文件:
CAD
授权
普通
价格:
40知币
VIP专享价:
0
知币
开通VIP仅需0.16元/天>
VIP免费下载
收藏
分享
举报
相关推荐
综合
墙面节点
背景墙节点
轻钢龙骨隔墙
壁龛节点
隔音墙节点