CAD频道
CAD图库
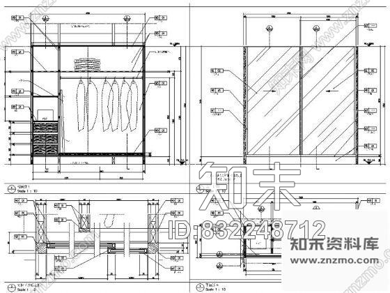
图块/节点酒店套房衣柜详图 柜类 家具节点详图
1/
2
Previous
Next
图块/节点酒店套房衣柜详图CAD下载
ID: 832248712
复制
上传作者
972595634
上传时间
2019-02-01
文件大小
0.16M
设计风格:
其他
CAD版本:
--
包含文件:
CAD
授权
普通
价格:
40知币
VIP专享价:
0
知币
开通VIP仅需0.16元/天>
VIP免费下载
收藏
分享
举报
相关推荐
综合
家具节点详图
柜体节点
吧台节点
壁炉节点
卡座节点
前台节点
综合家具节点