CAD频道
CAD图库
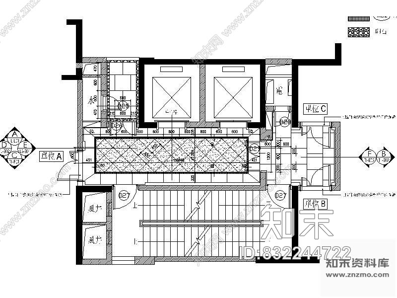
图块/节点住宅电梯厅详图
1/
4
Previous
Next
图块/节点住宅电梯厅详图CAD下载
ID: 832244722
复制
上传作者
949653843
上传时间
2019-02-01
文件大小
0.53M
设计风格:
其他
CAD版本:
--
包含文件:
CAD
授权
普通
价格:
40知币
VIP专享价:
0
知币
开通VIP仅需0.16元/天>
VIP免费下载
收藏
分享
举报
相关推荐
综合
节点详图
其他节点详图
吊顶节点
墙面节点
地面节点
门节点
建筑工程节点
景观小品
楼梯节点
水景