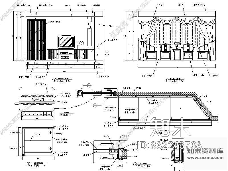
图块/节点中餐包间电视柜详图施工图下载【ID:832243768】

图块/节点中餐包间电视柜详图CAD下载

ID: 832243768
复制
上传作者
947422972947422972

上传时间2019-02-01

文件大小0.12M

设计风格:其他

CAD版本:--

包含文件:CAD

授权普通

价格:40知币

VIP专享价:
0知币
收藏
分享
举报
相关推荐
综合
家具节点详图
柜体节点
吧台节点
壁炉节点
卡座节点
前台节点
综合家具节点