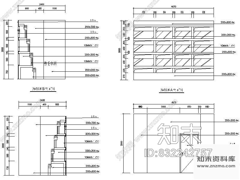
餐厅海鲜池详图施工图下载【ID:832242757】

餐厅海鲜池详图CAD下载

ID: 832242757
复制
上传作者
939544279939544279

上传时间2019-02-01

文件大小0.04M

设计风格:其他

CAD版本:--

包含文件:CAD

授权普通

价格:40知币

VIP专享价:
0知币
开通VIP仅需0.16元/天>
收藏
分享
举报
相关推荐
综合
节点详图
其他节点详图
吊顶节点
墙面节点
地面节点
门节点
建筑工程节点
景观小品
楼梯节点
水景