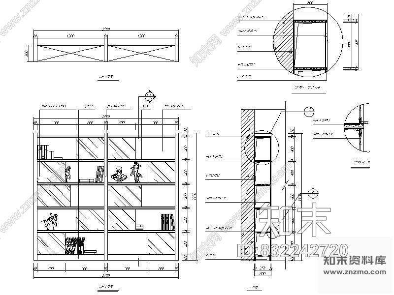
图块/节点书柜详图1施工图下载【ID:832242720】

图块/节点书柜详图1CAD下载

ID: 832242720
复制
上传作者
938326736938326736

上传时间2019-02-01

文件大小0.14M

设计风格:其他

CAD版本:--

包含文件:CAD

授权普通

立即下载
收藏
分享
举报
相关推荐
综合
家具节点详图
柜体节点
吧台节点
壁炉节点
卡座节点
前台节点
综合家具节点