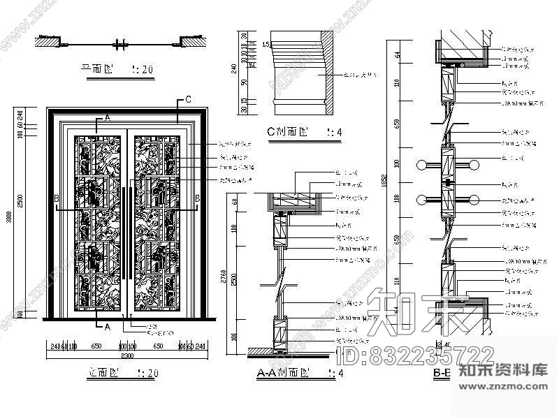
图块/节点娱乐城双开玻璃推拉门施工图下载【ID:832235722】

图块/节点娱乐城双开玻璃推拉门CAD下载

ID: 832235722
复制
上传作者
892197548892197548

上传时间2019-02-01

文件大小0.19M

设计风格:其他

CAD版本:--

包含文件:CAD

授权普通

立即下载
收藏
分享
举报
相关推荐
综合
门节点
玻璃门节点
入户门
铁艺大门
月洞门
推拉门节点
隐形门节点
综合门节点