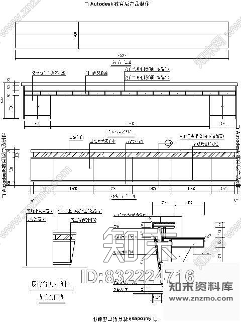
图块/节点酒店接待台详图施工图下载【ID:832224716】

图块/节点酒店接待台详图CAD下载

ID: 832224716
复制
上传作者
831643199831643199

上传时间2019-02-01

文件大小0.05M

设计风格:其他

CAD版本:--

包含文件:CAD

授权普通

立即下载
收藏
分享
举报
相关推荐
综合
家具节点详图
前台节点
吧台节点
壁炉节点
柜体节点
卡座节点
综合家具节点