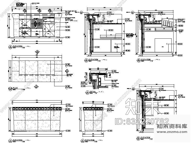
图块/节点酒店大堂迎宾台详图施工图下载【ID:832220782】

图块/节点酒店大堂迎宾台详图CAD下载

ID: 832220782
复制
上传作者
813575734813575734

上传时间2019-02-01

文件大小1.16M

设计风格:其他

CAD版本:--

包含文件:CAD

授权普通

立即下载
收藏
分享
举报
相关推荐
综合
工装图库
酒店家具
办公家具图库
餐厅家具
展览展厅家具
工装综合图库