CAD频道
CAD图库
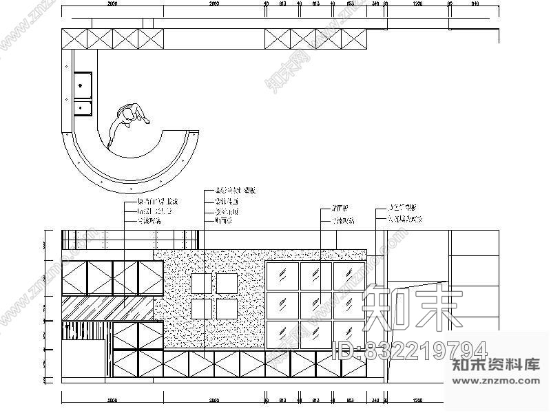
图块/节点办公楼休闲水吧台详图 节点 家具节点详图
1/
3
Previous
Next
图块/节点办公楼休闲水吧台详图CAD下载
ID: 832219794
复制
上传作者
797112473
上传时间
2019-02-01
文件大小
0.09M
设计风格:
其他
CAD版本:
--
包含文件:
CAD
授权
普通
立即下载
收藏
分享
举报
相关推荐
综合
家具节点详图
吧台节点
壁炉节点
柜体节点
卡座节点
前台节点
综合家具节点