
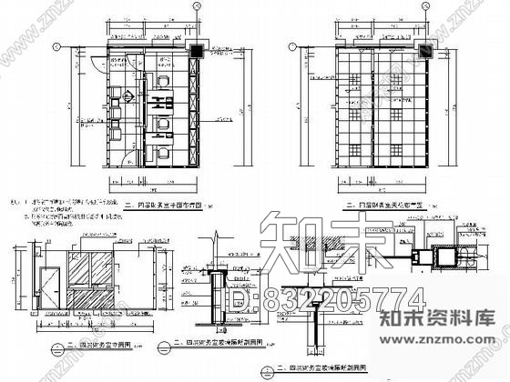
图块/节点房地产财务室装修详图CAD下载
ID: 832205774
复制
上传作者
721939843
721939843上传时间2019-02-01
文件大小0.22M
设计风格:其他
CAD版本:--
包含文件:CAD
授权普通
立即下载
收藏
分享
举报
相关推荐
综合
办公空间
开放办公室
会议室
休息室
整体办公空间
独立办公室
直播间
茶水间
接待室
工作室

721939843上传时间2019-02-01
文件大小0.22M
设计风格:其他
CAD版本:--
包含文件:CAD
授权普通