
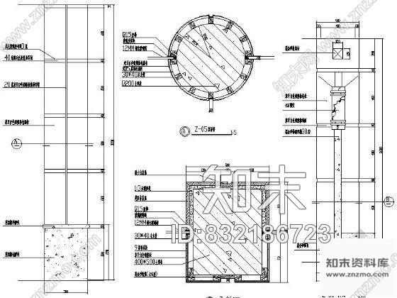
象牙铝塑板包柱CAD下载
ID: 832186723
复制
上传作者
596357386
596357386上传时间2019-02-01
文件大小0.05M
设计风格:其他
CAD版本:--
包含文件:CAD
授权普通
立即下载
收藏
分享
举报
相关推荐
综合
节点详图
包柱节点
吊顶节点
墙面节点
地面节点
门节点
其他节点详图
建筑工程节点
景观小品
楼梯节点

596357386上传时间2019-02-01
文件大小0.05M
设计风格:其他
CAD版本:--
包含文件:CAD
授权普通