1/3
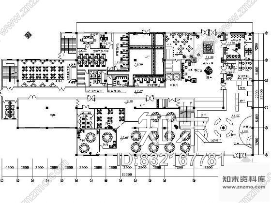
宾馆平面设计方案图施工图下载【ID:832167781】

宾馆平面设计方案图CAD下载

ID: 832167781
复制
上传作者
487474231487474231

上传时间2019-02-01

文件大小1.73M

设计风格:其他

CAD版本:--

包含文件:CAD

授权普通

立即下载
收藏
分享
举报
相关推荐
综合
酒店
其他酒店
酒店餐厅
酒店大堂
酒店公区
酒店客房
酒店卫生间
酒店套房
酒店宴会厅