CAD频道
CAD图库
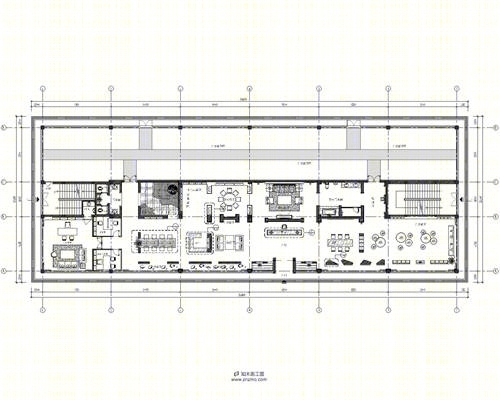
石材展厅(施工图)
1/
3
Previous
Next
石材展厅(CAD)CAD下载
ID: 76920366
复制
上传作者
538436335
上传时间
2018-01-29
文件大小
16M
设计风格:
其他风格
CAD版本:
CAD2007
包含文件:
CAD
授权
普通
价格:
40知币
VIP专享价:
0
知币
VIP免费下载
收藏
分享
举报
相关推荐
综合
展厅
家具展厅
展台
企业展厅
文化展厅
科技展厅
汽车展厅
服装展厅
展馆
其他展厅