1/3


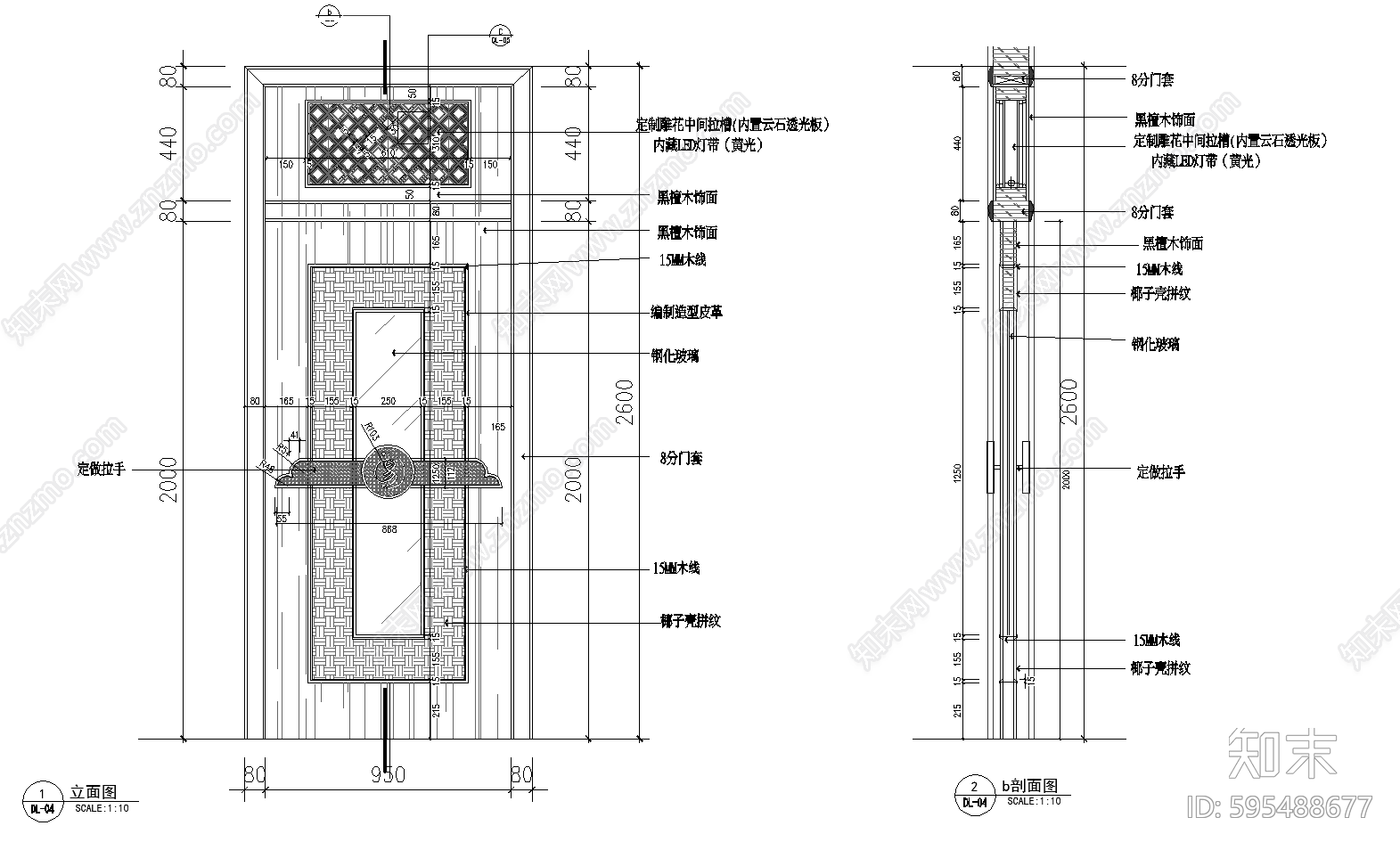
中式会所门CAD下载
ID: 595488677
复制
上传作者
*-55869623
*-55869623上传时间2021-06-21
文件大小6.74M
设计风格:中式
CAD版本:CAD2004
包含文件:CAD
授权普通
立即下载
收藏
分享
举报
相关推荐
综合
CAD图库
标识图库
家具图库
其他图库
灯具图库
植物图库
填充图案
交通工具图库
工装图库
制图规范


*-55869623上传时间2021-06-21
文件大小6.74M
设计风格:中式
CAD版本:CAD2004
包含文件:CAD
授权普通