CAD频道
CAD图库
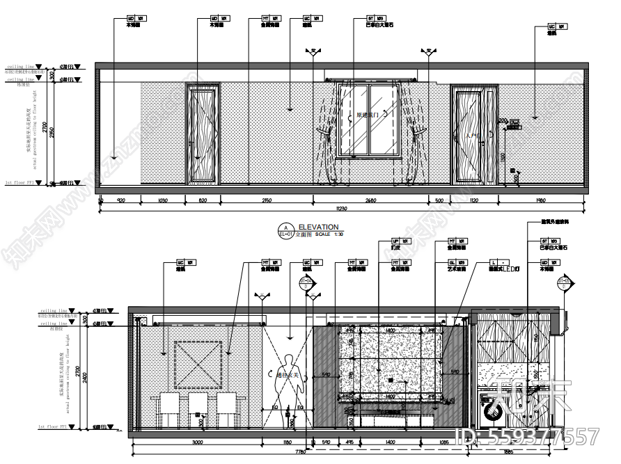
143平 现代风格三居室样板间 施工图+效果图 平层
1/
8
Previous
Next
143平CAD下载
ID: 559377557
复制
上传作者
是美少女呀
上传时间
2020-05-02
文件大小
134.93M
设计风格:
现代简约
CAD版本:
CAD2010
包含文件:
CAD
授权
独家
立即下载
收藏
分享
举报
相关推荐
综合
平层
大平层
小户型平层
超大型平层