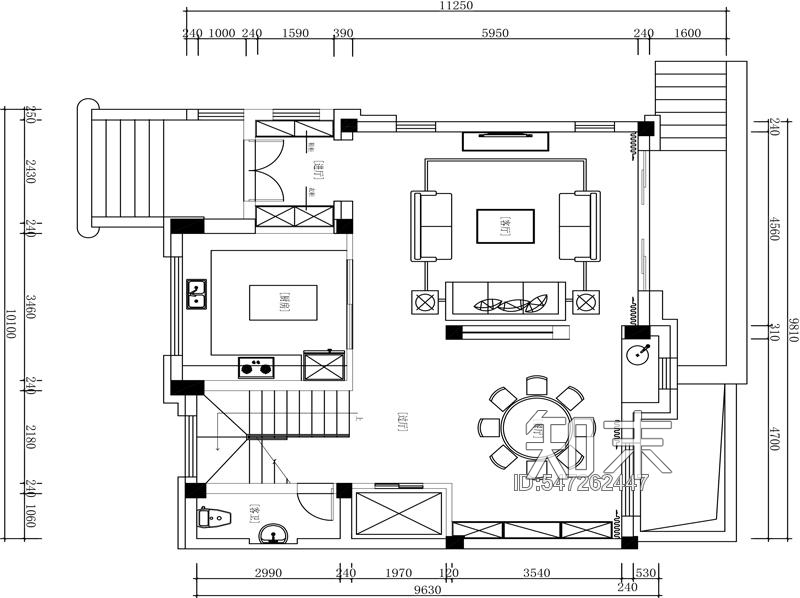
欧式别墅大宅施工图下载【ID:547262447】

欧式别墅大宅CAD下载

ID: 547262447
复制
上传作者
笨笨驴笨笨驴

上传时间2019-10-15

文件大小2.27M

设计风格:后现代

CAD版本:

包含文件:CAD

授权独家

立即下载
收藏
分享
举报
相关推荐
综合
家装
别墅
公寓
平层
其他家装空间
家装局部空间
样板间
阳光房
全屋智能
全屋定制