1/23


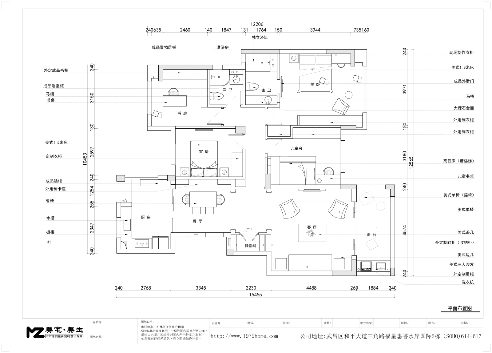
现代北欧家装别墅案例(CADACD+实景图)CAD...
ID: 541789559
复制
上传作者
墨小北
墨小北上传时间2019-05-29
文件大小89.45M
设计风格:191,混搭
CAD版本:CAD2010
包含文件:CAD
授权普通
立即下载
收藏
分享
举报
相关推荐
综合
家装
别墅
公寓
平层
其他家装空间
家装局部空间
样板间
阳光房
全屋智能
全屋定制


墨小北上传时间2019-05-29
文件大小89.45M
设计风格:191,混搭
CAD版本:CAD2010
包含文件:CAD
授权普通