CAD频道
CAD图库
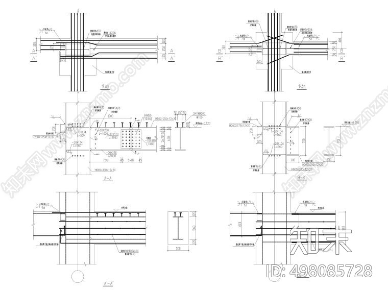
钢柱 节点详图 节点 结构节点图
1/
9
Previous
Next
钢柱CAD下载
ID: 498085728
复制
上传作者
阚阚资料
上传时间
2021-07-23
文件大小
10.87M
设计风格:
--
CAD版本:
CAD2014
包含文件:
CAD
授权
独家
立即下载
收藏
分享
举报
相关推荐
综合
结构节点图
钢结构节点
桁架
混凝土节点
幕墙结构节点
转换层
其他结构设计