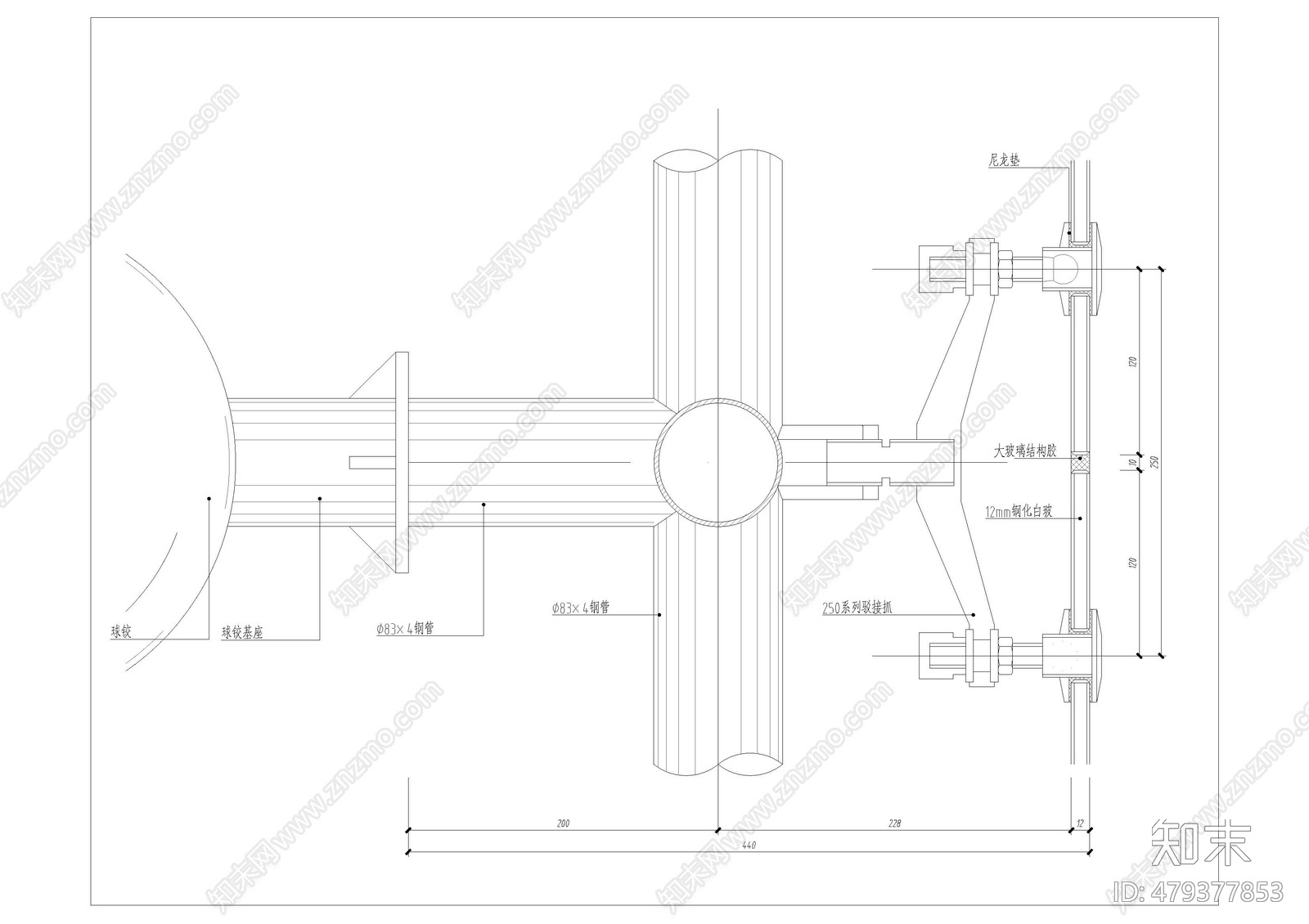
点式玻璃幕墙节点施工图下载【ID:479377853】

点式玻璃幕墙节点CAD下载

ID: 479377853
复制
上传作者
LY-DLY-D

上传时间2020-12-02

文件大小0.05M

设计风格:--

CAD版本:CAD2004

包含文件:CAD

授权独家

立即下载
收藏
分享
举报
相关推荐
综合
结构节点图
幕墙结构节点
桁架
钢结构节点
混凝土节点
转换层
其他结构设计