CAD频道
CAD图库
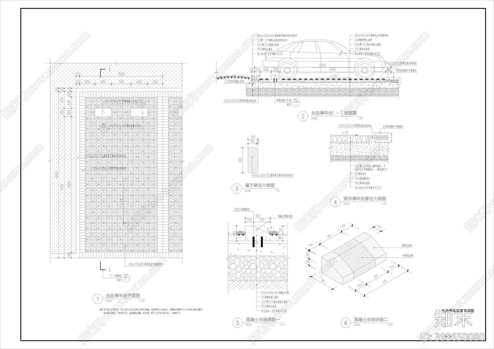
植草砖 生态 通用详图
1/
2
Previous
Next
植草砖CAD下载
ID: 393650080
复制
上传作者
空白Joyce
上传时间
2021-05-27
文件大小
0.12M
设计风格:
--
CAD版本:
CAD2008
包含文件:
CAD
授权
独家
立即下载
收藏
分享
举报
相关推荐
综合
景观小品
停车位
亭子
廊架
景墙
综合景观小品
雨棚
围墙
挡土墙
入口