CAD频道
CAD图库
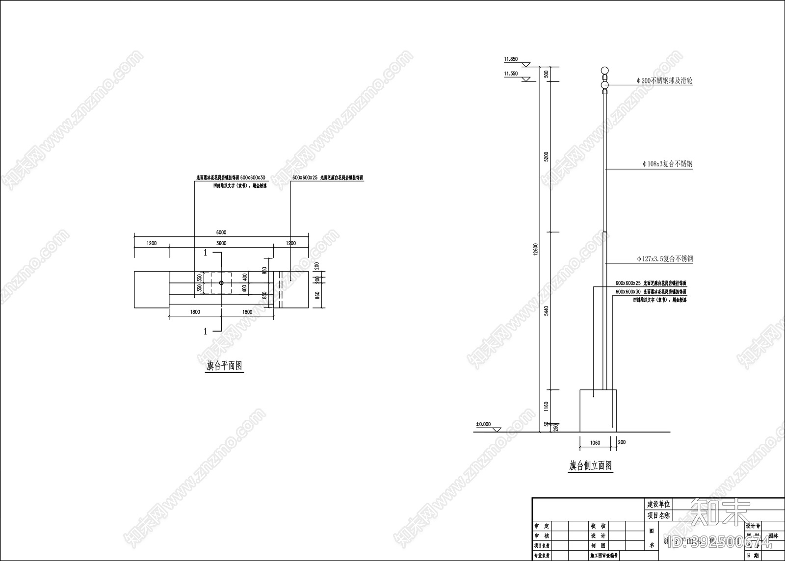
旗杆 旗台 详图
1/
2
Previous
Next
旗杆CAD下载
ID: 392500674
复制
上传作者
*晴天~
上传时间
2021-05-13
文件大小
4.67M
设计风格:
现代简约
CAD版本:
CAD2014
包含文件:
CAD
授权
普通
立即下载
收藏
分享
举报
相关推荐
综合
节点详图
其他节点详图
吊顶节点
墙面节点
地面节点
门节点
建筑工程节点
景观小品
楼梯节点
水景