CAD频道
CAD图库
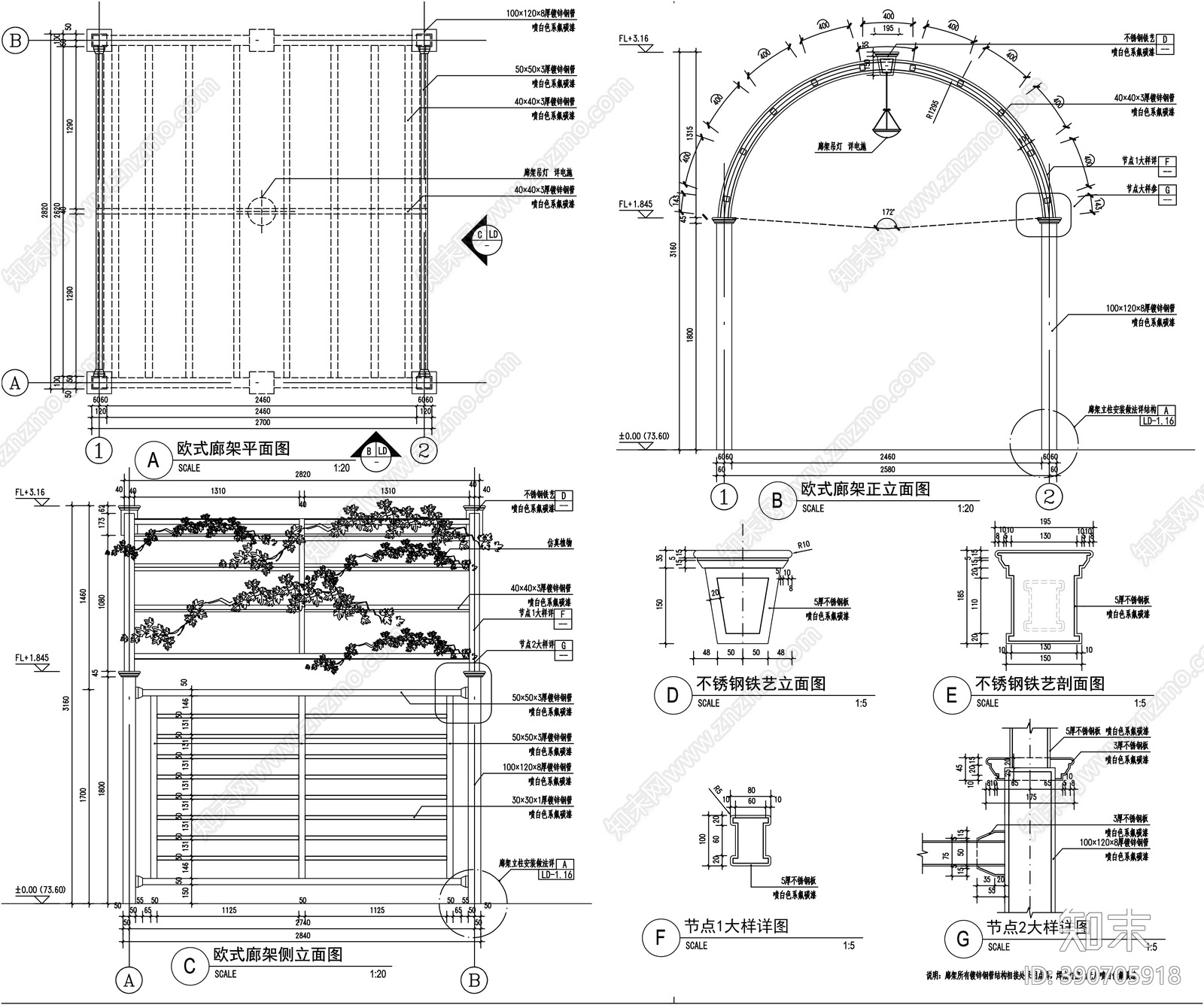
欧式廊架 拱 架 详图 施工图
1/
2
Previous
Next
欧式廊架CAD下载
ID: 390705918
复制
上传作者
*晴天~
上传时间
2021-04-21
文件大小
0.53M
设计风格:
欧式简约
CAD版本:
CAD2014
包含文件:
CAD
授权
普通
立即下载
收藏
分享
举报
相关推荐
综合
景观小品
廊架
亭子
景墙
综合景观小品
雨棚
围墙
挡土墙
入口
景观坐凳