CAD频道
CAD图库
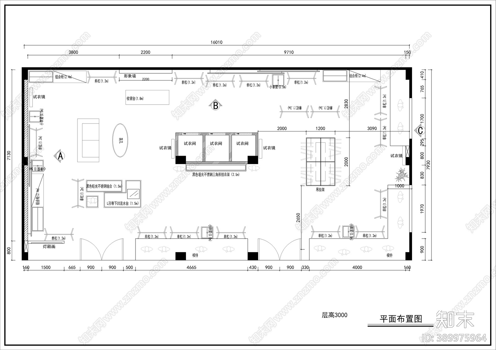
现代风格服装店 施工图
1/
8
Previous
Next
现代风格服装店CAD下载
ID: 389975964
复制
上传作者
绿萝和猫
上传时间
2021-04-14
文件大小
0.75M
设计风格:
现代简约
CAD版本:
CAD2004
包含文件:
CAD
授权
普通
立即下载
收藏
分享
举报
相关推荐
综合
商业空间
服装店
售楼处
商场
其他商业空间
超市
书店
美甲店
珠宝店
4s店