CAD频道
CAD图库
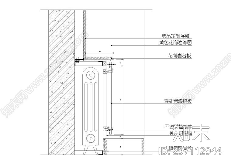
暖气罩 图
1/
5
Previous
Next
暖气罩CAD下载
ID: 297112944
复制
上传作者
阚阚资料
上传时间
2021-07-12
文件大小
0.93M
设计风格:
--
CAD版本:
CAD2014
包含文件:
CAD
授权
独家
立即下载
收藏
分享
举报
相关推荐
综合
节点详图
其他节点详图
吊顶节点
墙面节点
地面节点
门节点
建筑工程节点
景观小品
楼梯节点
水景