CAD频道
CAD图库
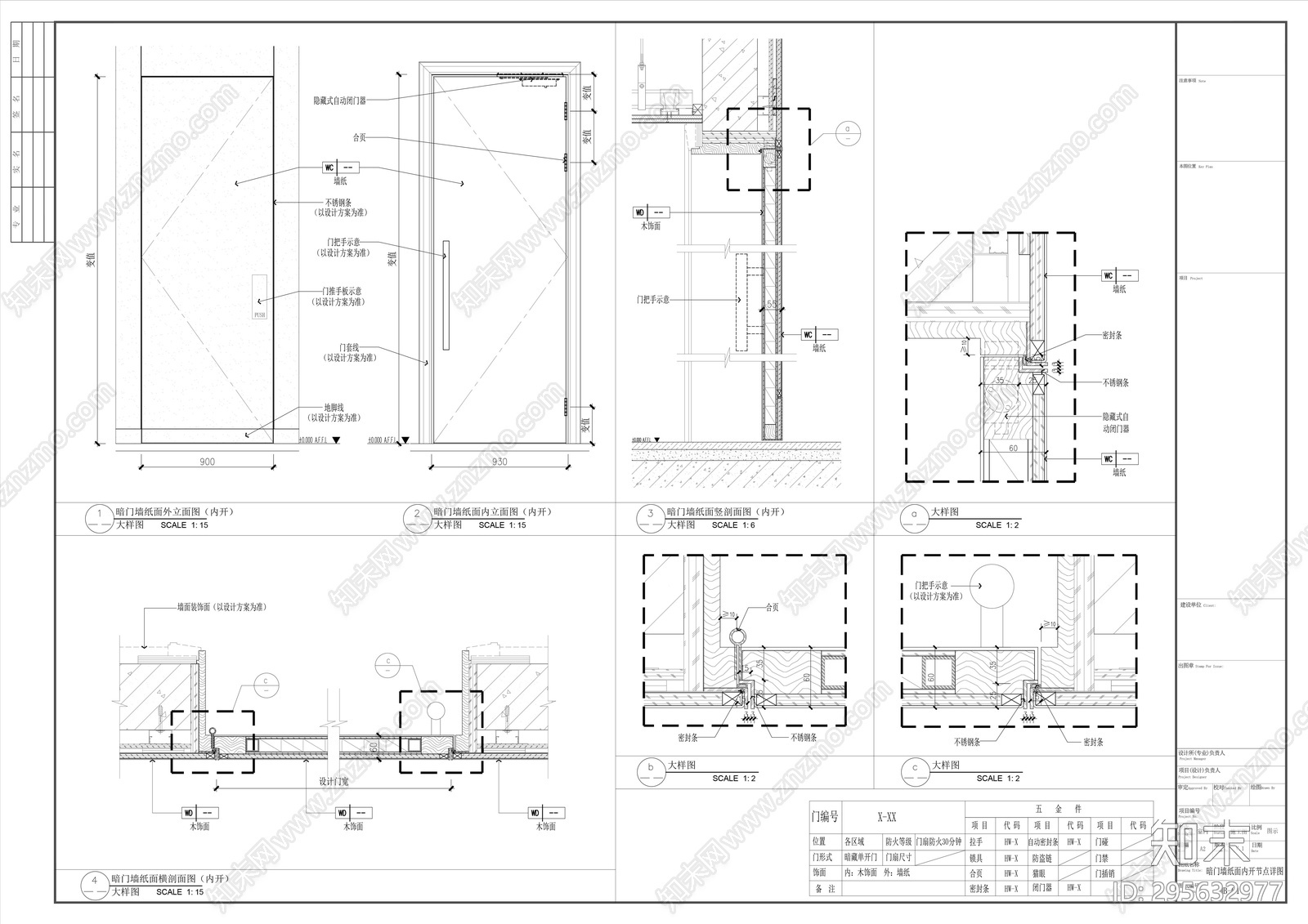
墙纸暗门外 内大样图 墙面通用节点
1/
2
Previous
Next
墙纸暗门外CAD下载
ID: 295632977
复制
上传作者
XL-1
上传时间
2021-06-23
文件大小
1.51M
设计风格:
--
CAD版本:
CAD2007
包含文件:
CAD
授权
独家
立即下载
收藏
分享
举报
相关推荐
综合
墙面节点
背景墙节点
轻钢龙骨隔墙
壁龛节点
隔音墙节点