CAD频道
CAD图库
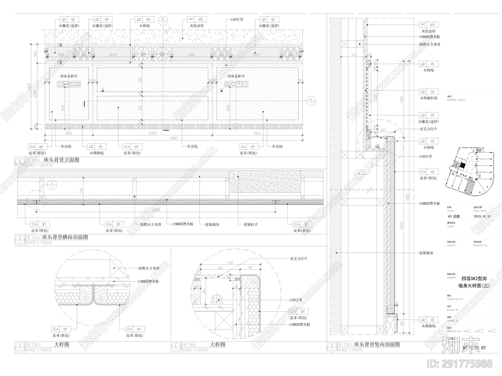
五星级酒店 客房 墙身大样图 墙面通用节点
1/
3
Previous
Next
五星级酒店CAD下载
ID: 291775988
复制
上传作者
xin图
上传时间
2021-05-04
文件大小
5.63M
设计风格:
--
CAD版本:
CAD2004
包含文件:
CAD
授权
独家
立即下载
收藏
分享
举报
相关推荐
综合
墙面节点
背景墙节点
轻钢龙骨隔墙
壁龛节点
隔音墙节点