CAD频道
CAD图库
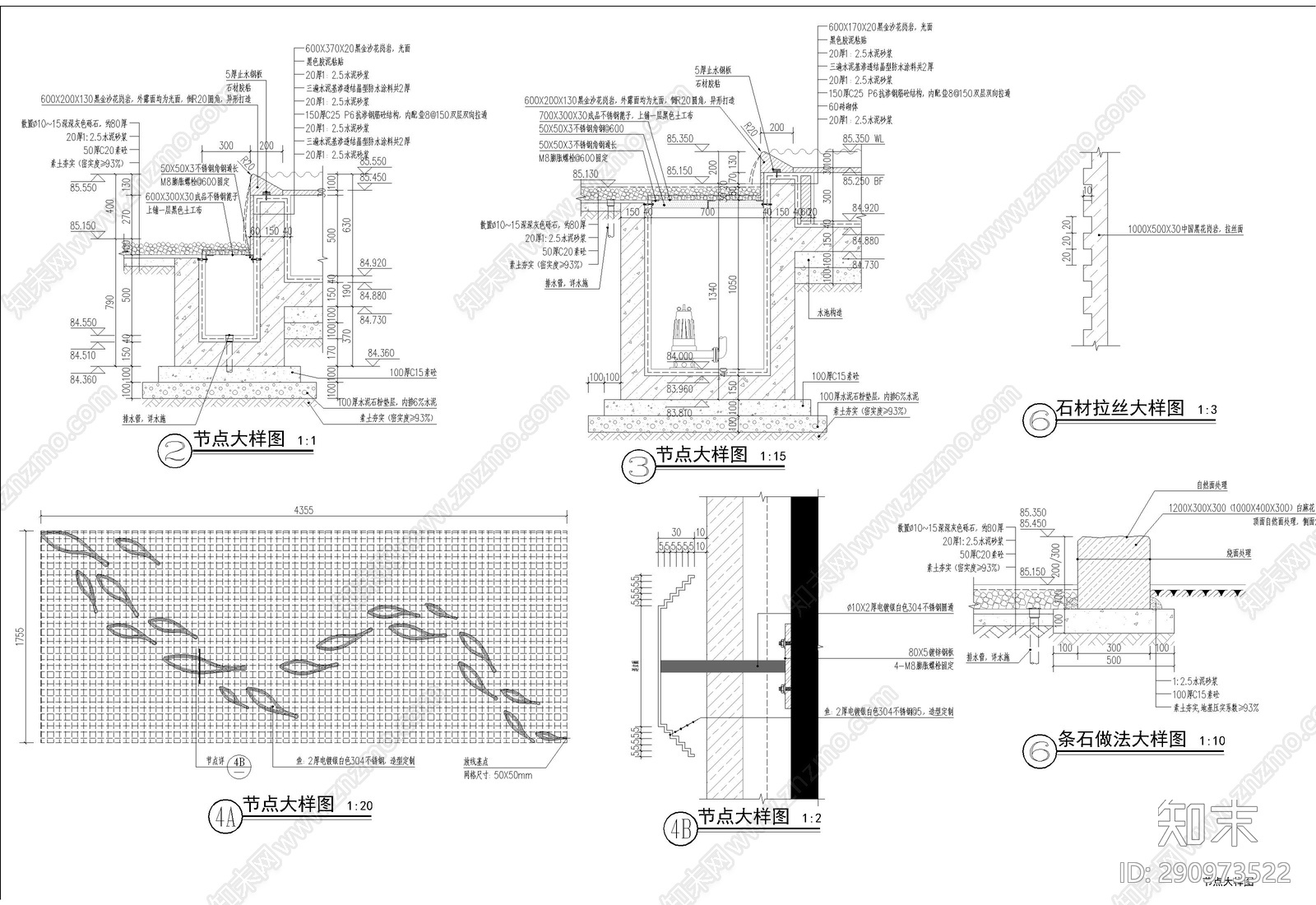
景观设计 跌水景墙 详图
1/
3
Previous
Next
景观设计CAD下载
ID: 290973522
复制
上传作者
xin图
上传时间
2021-04-24
文件大小
3.13M
设计风格:
--
CAD版本:
CAD2004
包含文件:
CAD
授权
独家
立即下载
收藏
分享
举报
相关推荐
综合
景观小品
景墙
亭子
廊架
综合景观小品
雨棚
围墙
挡土墙
入口
景观坐凳