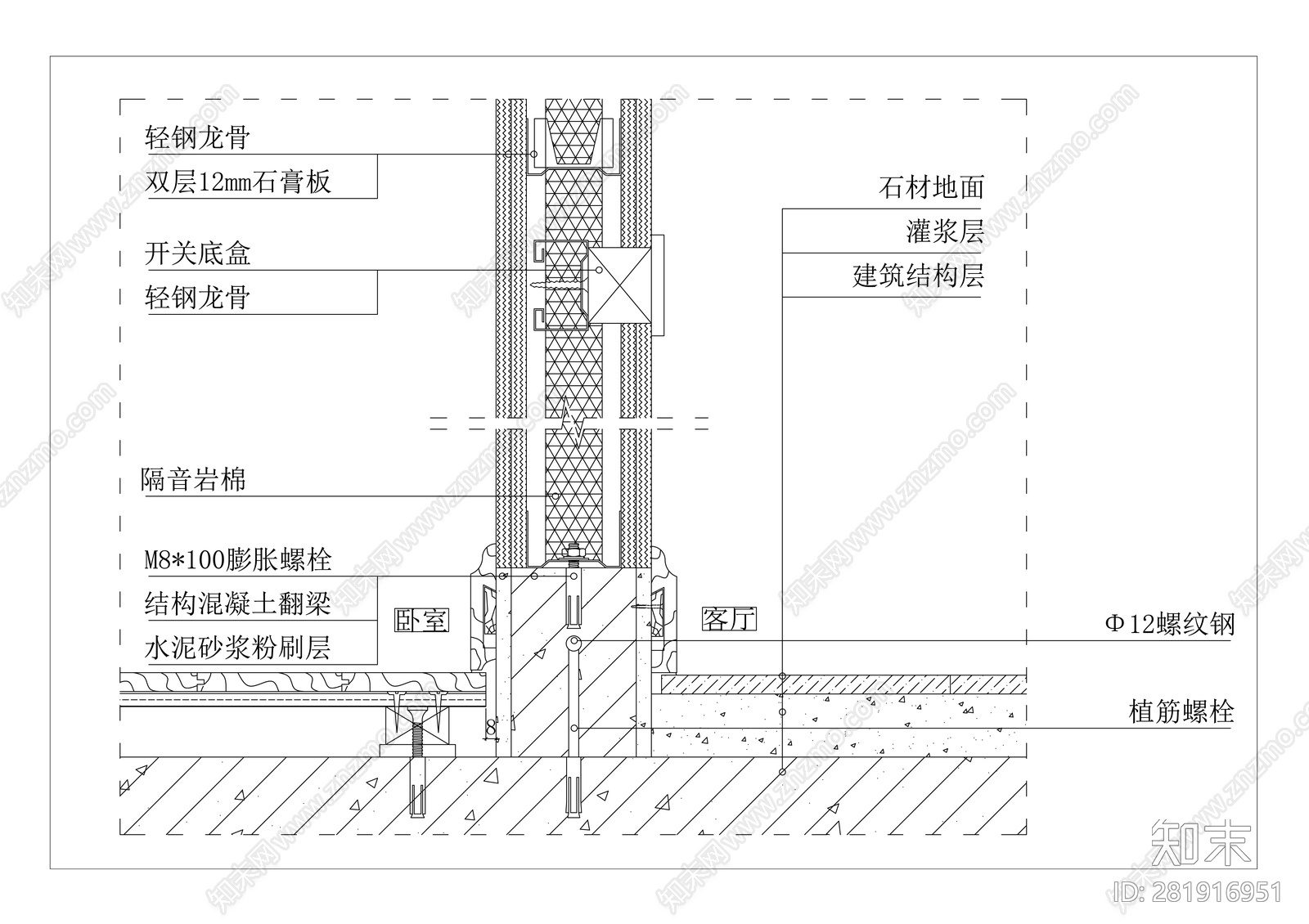
卧室与客厅隔墙节点详图施工图下载【ID:281916951】

卧室与客厅隔墙节点详图CAD下载

ID: 281916951
复制
上传作者
LY-DLY-D

上传时间2020-12-27

文件大小0.05M

设计风格:--

CAD版本:CAD2004

包含文件:CAD

授权独家

立即下载
收藏
分享
举报
相关推荐
综合
墙面节点
背景墙节点
轻钢龙骨隔墙
壁龛节点
隔音墙节点