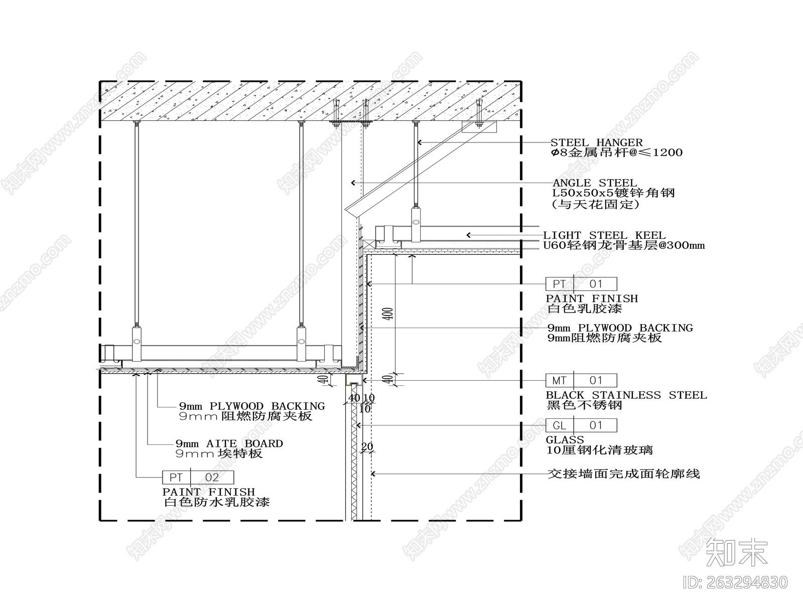
玻璃隔断与天花相接节点大样图施工图下载【ID:263294830】

玻璃隔断与天花相接节点大样图CAD下载

ID: 263294830
复制
上传作者
小宇宝宝小宇宝宝

上传时间2020-06-11

文件大小0.06M

设计风格:其他

CAD版本:CAD2004

包含文件:CAD

授权普通

立即下载
收藏
分享
举报
相关推荐
综合
家具节点详图
综合家具节点
吧台节点
壁炉节点
柜体节点
卡座节点
前台节点