CAD频道
CAD图库
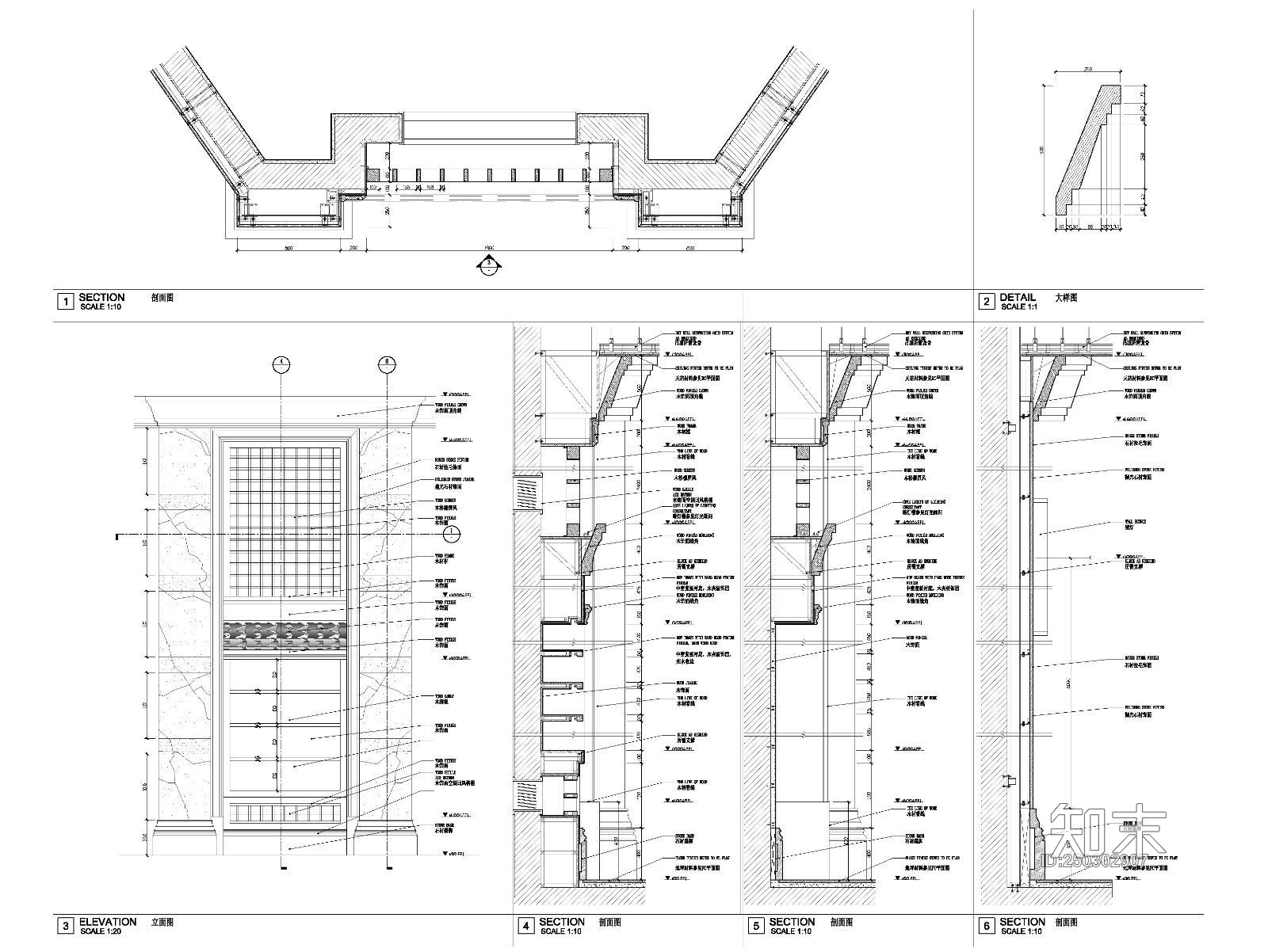
墙面造型墙详图石材干挂节点图 墙面通用节点
1/
3
Previous
Next
墙面造型墙详图石材干挂节点图CAD下载
ID: 250302907
复制
上传作者
专属为你设计
上传时间
2019-11-29
文件大小
1.43M
设计风格:
其他
CAD版本:
包含文件:
CAD
授权
独家
立即下载
收藏
分享
举报
相关推荐
综合
墙面节点
背景墙节点
轻钢龙骨隔墙
壁龛节点
隔音墙节点