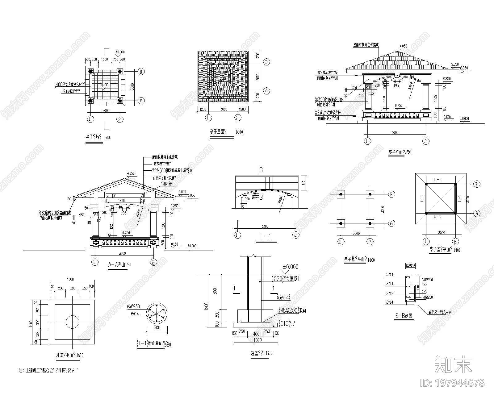
凉亭施工图下载【ID:197944678】

凉亭CAD下载

ID: 197944678
复制
上传作者
小会涂猿小会涂猿

上传时间2021-07-21

文件大小0.16M

设计风格:--

CAD版本:CAD2004

包含文件:CAD

授权普通

立即下载
收藏
分享
举报
相关推荐
综合
景观小品
亭子
廊架
景墙
综合景观小品
雨棚
围墙
挡土墙
入口
景观坐凳