1/2


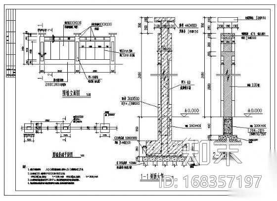
某地梁围墙详图CAD下载
ID: 168357197
复制
上传作者
948343276
948343276上传时间2020-07-22
文件大小0.13M
设计风格:其他
CAD版本:CAD2000
包含文件:CAD
授权普通
立即下载
收藏
分享
举报
相关推荐
综合
结构节点图
混凝土节点
桁架
钢结构节点
幕墙结构节点
转换层
其他结构设计


948343276上传时间2020-07-22
文件大小0.13M
设计风格:其他
CAD版本:CAD2000
包含文件:CAD
授权普通