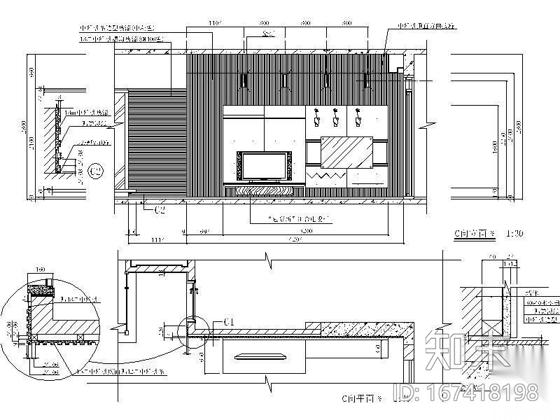
电视背景墙详图Ⅱ施工图下载【ID:167418198】

电视背景墙详图ⅡCAD下载

ID: 167418198
复制
上传作者
736658384736658384

上传时间2020-07-16

文件大小0.07M

设计风格:其他

CAD版本:CAD2000

包含文件:CAD

授权普通

立即下载
收藏
分享
举报
相关推荐
综合
墙面节点
背景墙节点
轻钢龙骨隔墙
壁龛节点
隔音墙节点