
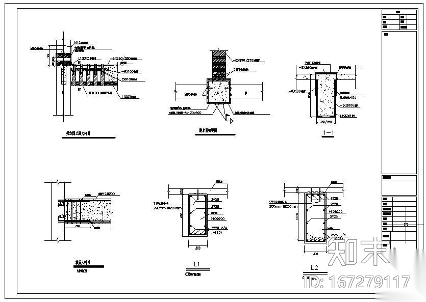
某梁粘钢加固及植筋加固节点构造详图CAD下载
ID: 167279117
复制
上传作者
599616374
599616374上传时间2020-07-15
文件大小0.05M
设计风格:其他
CAD版本:CAD2000
包含文件:CAD
授权普通
立即下载
收藏
分享
举报
相关推荐
综合
结构节点图
混凝土节点
桁架
钢结构节点
幕墙结构节点
转换层
其他结构设计

599616374上传时间2020-07-15
文件大小0.05M
设计风格:其他
CAD版本:CAD2000
包含文件:CAD
授权普通