1/4


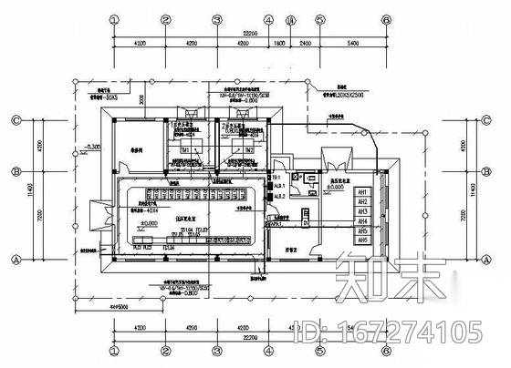
某污水处理厂10kV/0.4kV变电站电气图纸CA...
ID: 167274105
复制
上传作者
593596639
593596639上传时间2020-07-15
文件大小2.26M
设计风格:其他
CAD版本:CAD2000
包含文件:CAD
授权普通
立即下载
收藏
分享
举报
相关推荐
综合
机电工程
电气图
给排水图
水处理
暖通空调
电气工程节点
消防设施
机械设备
其他机电图纸
建筑给排水


593596639上传时间2020-07-15
文件大小2.26M
设计风格:其他
CAD版本:CAD2000
包含文件:CAD
授权普通