1/7


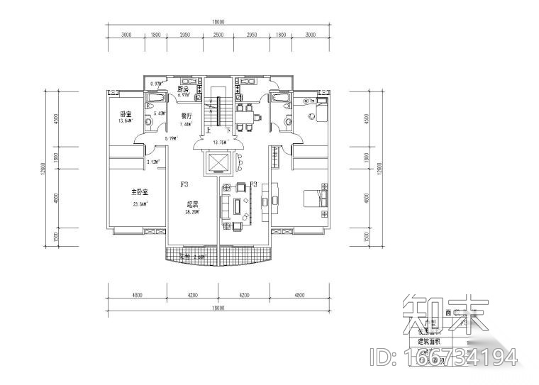
12套住宅户型设计纸(CAD)下载
ID: 166734194
复制
上传作者
261273882
261273882上传时间2020-07-11
文件大小0.59M
设计风格:其他
CAD版本:CAD2000
包含文件:CAD
授权普通
立即下载
收藏
分享
举报
相关推荐
综合
建筑
其他建筑
居住建筑
办公工业建筑
商业建筑
酒店民宿建筑
交通建筑
规划设计
古建
教育建筑


261273882上传时间2020-07-11
文件大小0.59M
设计风格:其他
CAD版本:CAD2000
包含文件:CAD
授权普通