
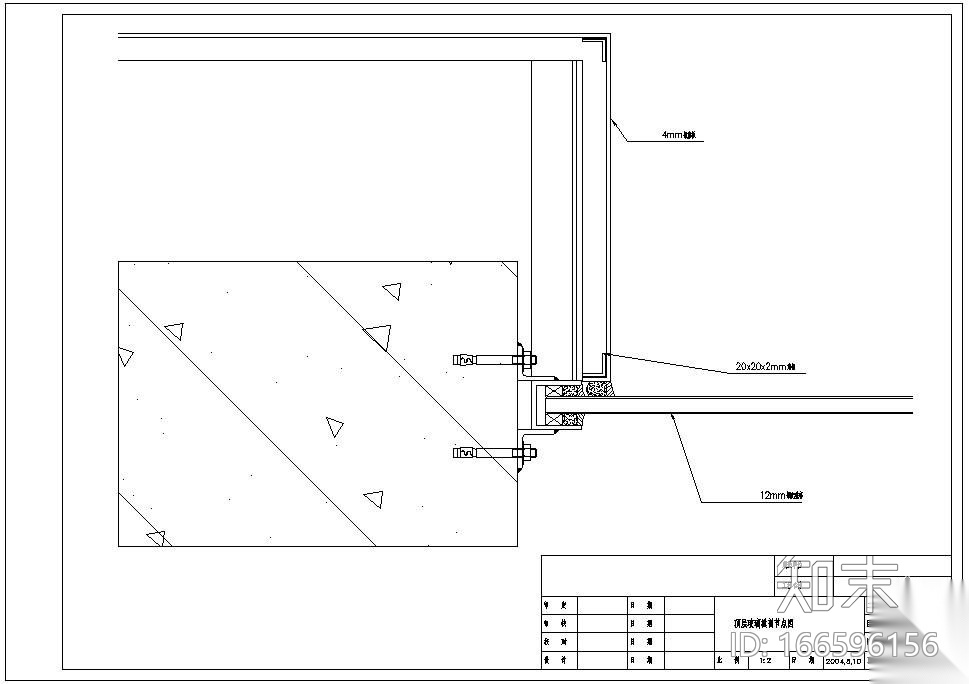
某明框玻璃幕墙节点构造详图(二)(顶层玻璃横剖图)...
ID: 166596156
复制
上传作者
917719363
917719363上传时间2020-07-10
文件大小0.02M
设计风格:其他
CAD版本:CAD2000
包含文件:CAD
授权普通
立即下载
收藏
分享
举报
相关推荐
综合
结构节点图
幕墙结构节点
桁架
钢结构节点
混凝土节点
转换层
其他结构设计

917719363上传时间2020-07-10
文件大小0.02M
设计风格:其他
CAD版本:CAD2000
包含文件:CAD
授权普通