1/7


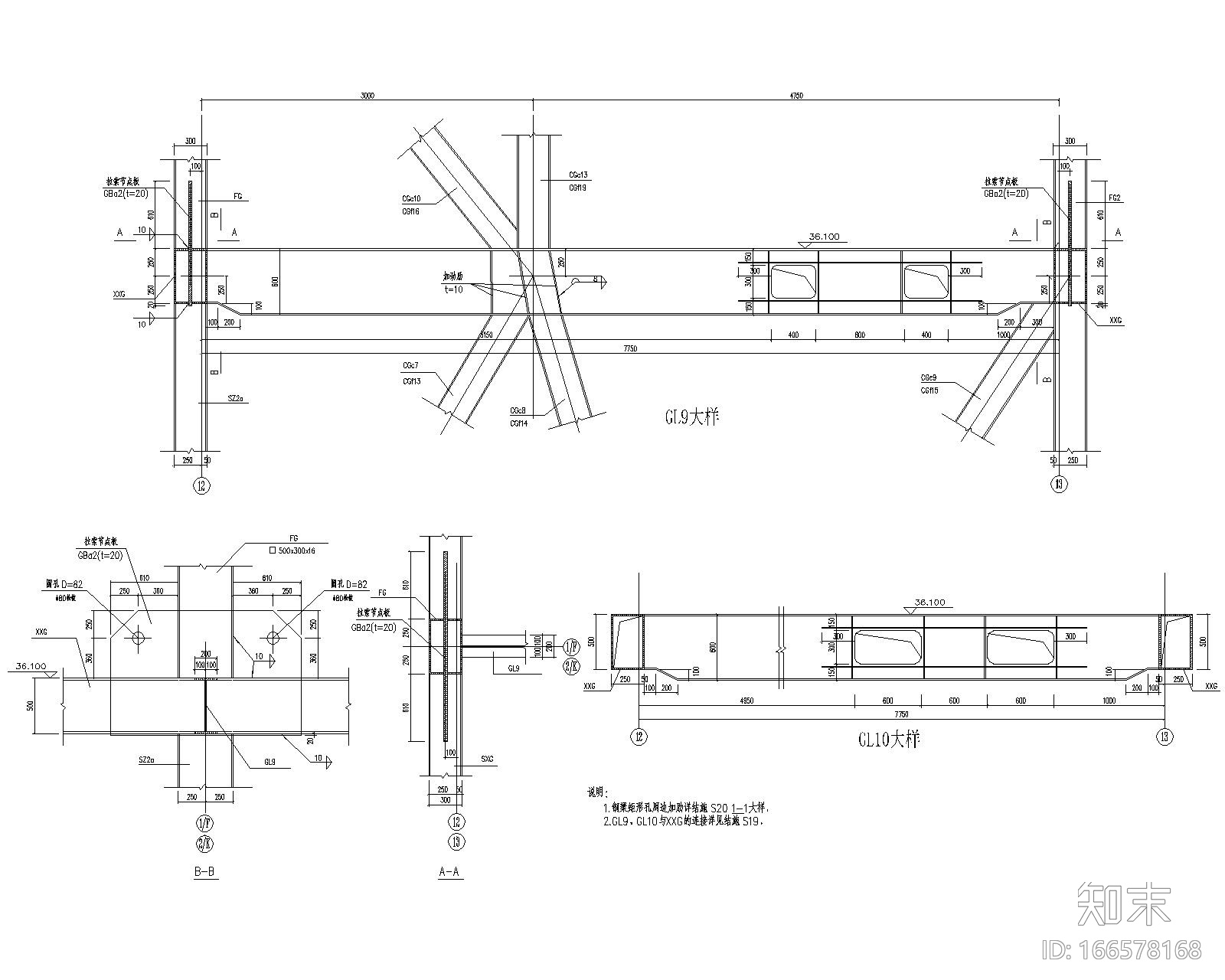
大型会展中心带连廊六层钢结构CAD下载
ID: 166578168
复制
上传作者
877838598
877838598上传时间2020-07-10
文件大小3.83M
设计风格:其他
CAD版本:CAD2000
包含文件:CAD
授权普通
立即下载
收藏
分享
举报
相关推荐
综合
公共空间
会展
其他公共空间
公共卫生间
宿舍
门头
服务中心
活动中心
母婴室
档案室


877838598上传时间2020-07-10
文件大小3.83M
设计风格:其他
CAD版本:CAD2000
包含文件:CAD
授权普通