1/8


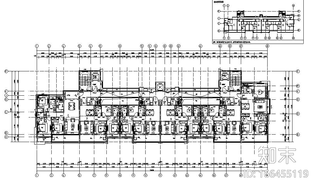
三梯六户三房两厅两卫+三房两厅一卫户型CAD下载
ID: 166455119
复制
上传作者
737761534
737761534上传时间2020-07-09
文件大小2.87M
设计风格:其他
CAD版本:CAD2000
包含文件:CAD
授权普通
立即下载
收藏
分享
举报
相关推荐
综合
建筑
其他建筑
居住建筑
办公工业建筑
商业建筑
酒店民宿建筑
交通建筑
规划设计
古建
教育建筑


737761534上传时间2020-07-09
文件大小2.87M
设计风格:其他
CAD版本:CAD2000
包含文件:CAD
授权普通