1/4


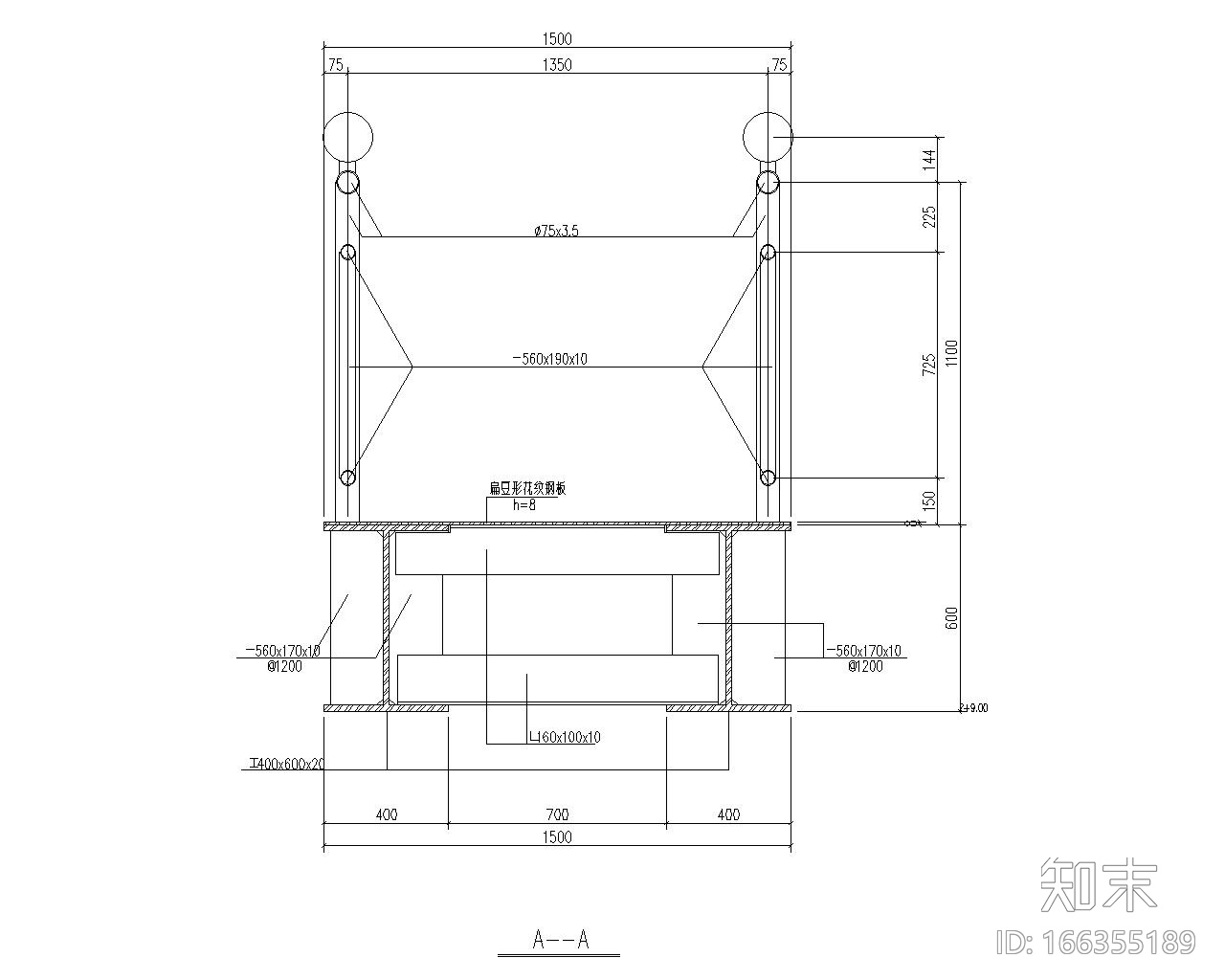
某人行轻钢桥梁结构(CAD)下载
ID: 166355189
复制
上传作者
639255997
639255997上传时间2020-07-08
文件大小0.34M
设计风格:其他
CAD版本:CAD2000
包含文件:CAD
授权普通
立即下载
收藏
分享
举报
相关推荐
综合
结构节点图
钢结构节点
桁架
混凝土节点
幕墙结构节点
转换层
其他结构设计


639255997上传时间2020-07-08
文件大小0.34M
设计风格:其他
CAD版本:CAD2000
包含文件:CAD
授权普通