1/11


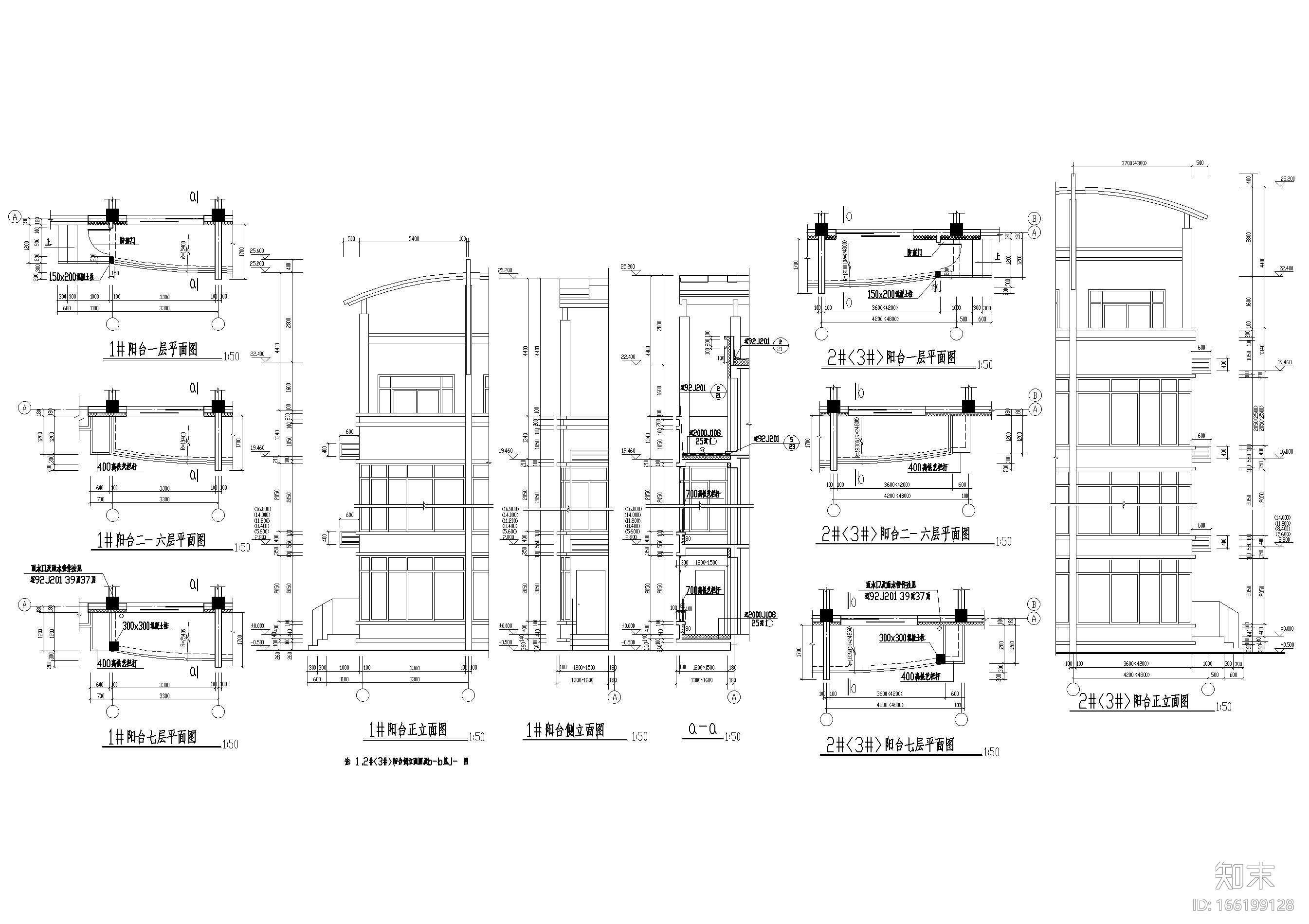
某坡地八层多层住宅建筑方案扩初图CAD下载
ID: 166199128
复制
上传作者
414939326
414939326上传时间2020-07-08
文件大小1.51M
设计风格:其他
CAD版本:CAD2000
包含文件:CAD
授权普通
立即下载
收藏
分享
举报
相关推荐
综合
居住建筑
住宅楼建筑
四合院
别墅建筑
其他居住建筑
高层住宅
多层住宅
低层住宅
公寓建筑
联排住宅


414939326上传时间2020-07-08
文件大小1.51M
设计风格:其他
CAD版本:CAD2000
包含文件:CAD
授权普通