
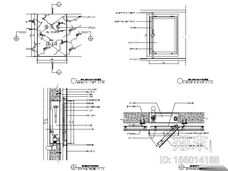
消火栓石材干挂门的节点详图CAD下载
ID: 166014188
复制
上传作者
243194761
243194761上传时间2020-07-06
文件大小0.44M
设计风格:其他
CAD版本:CAD2000
包含文件:CAD
授权普通
立即下载
收藏
分享
举报
相关推荐
综合
工装
其他工装空间
办公空间
教育空间
文化空间
民宿
商业空间
餐饮空间
休闲娱乐空间
展厅

243194761上传时间2020-07-06
文件大小0.44M
设计风格:其他
CAD版本:CAD2000
包含文件:CAD
授权普通