1/7


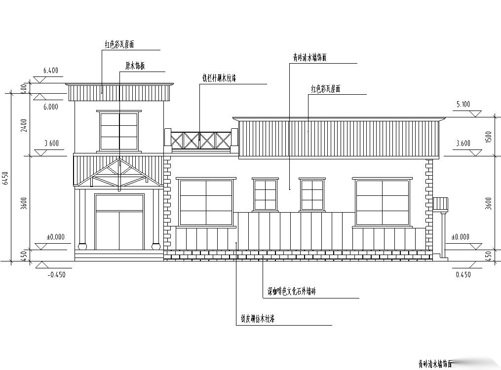
欧式独栋二层滨水咖啡厅商业建筑设计CAD下载
ID: 165929119
复制
上传作者
125929297
125929297上传时间2020-07-06
文件大小0.67M
设计风格:其他
CAD版本:CAD2000
包含文件:CAD
授权普通
立即下载
收藏
分享
举报
相关推荐
综合
商业建筑
商业街
售楼处建筑
其他商业建筑
商业综合体
农贸市场建筑
美食街
购物中心
餐饮建筑
娱乐建筑


125929297上传时间2020-07-06
文件大小0.67M
设计风格:其他
CAD版本:CAD2000
包含文件:CAD
授权普通