CAD频道
CAD图库
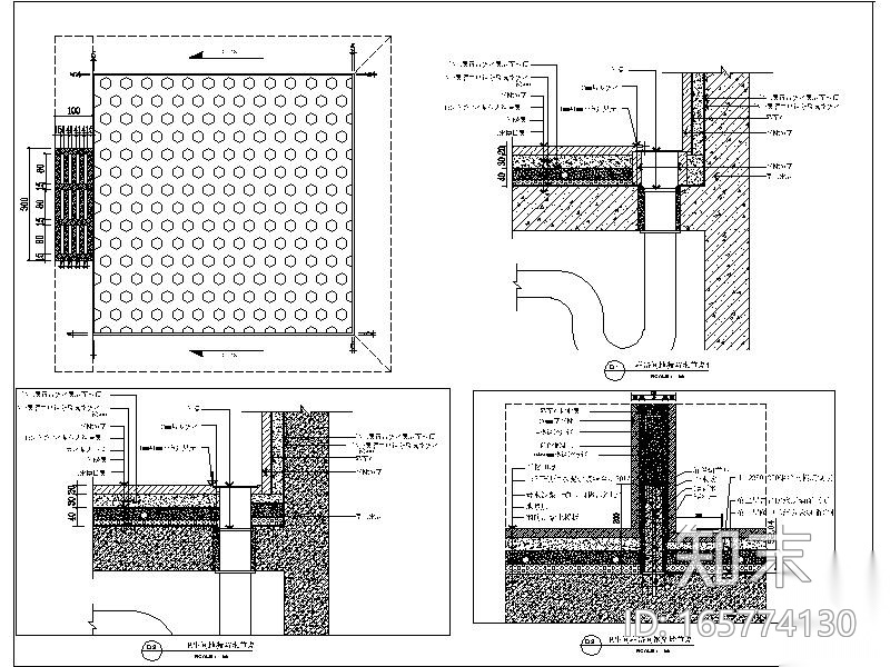
墙面石材与乳胶漆收口详图 墙面通用节点
1/
6
Previous
Next
墙面石材与乳胶漆收口详图CAD下载
ID: 165774130
复制
上传作者
928872786
上传时间
2020-07-03
文件大小
1.78M
设计风格:
其他
CAD版本:
CAD2000
包含文件:
CAD
授权
普通
立即下载
收藏
分享
举报
相关推荐
综合
墙面节点
背景墙节点
轻钢龙骨隔墙
壁龛节点
隔音墙节点