1/6


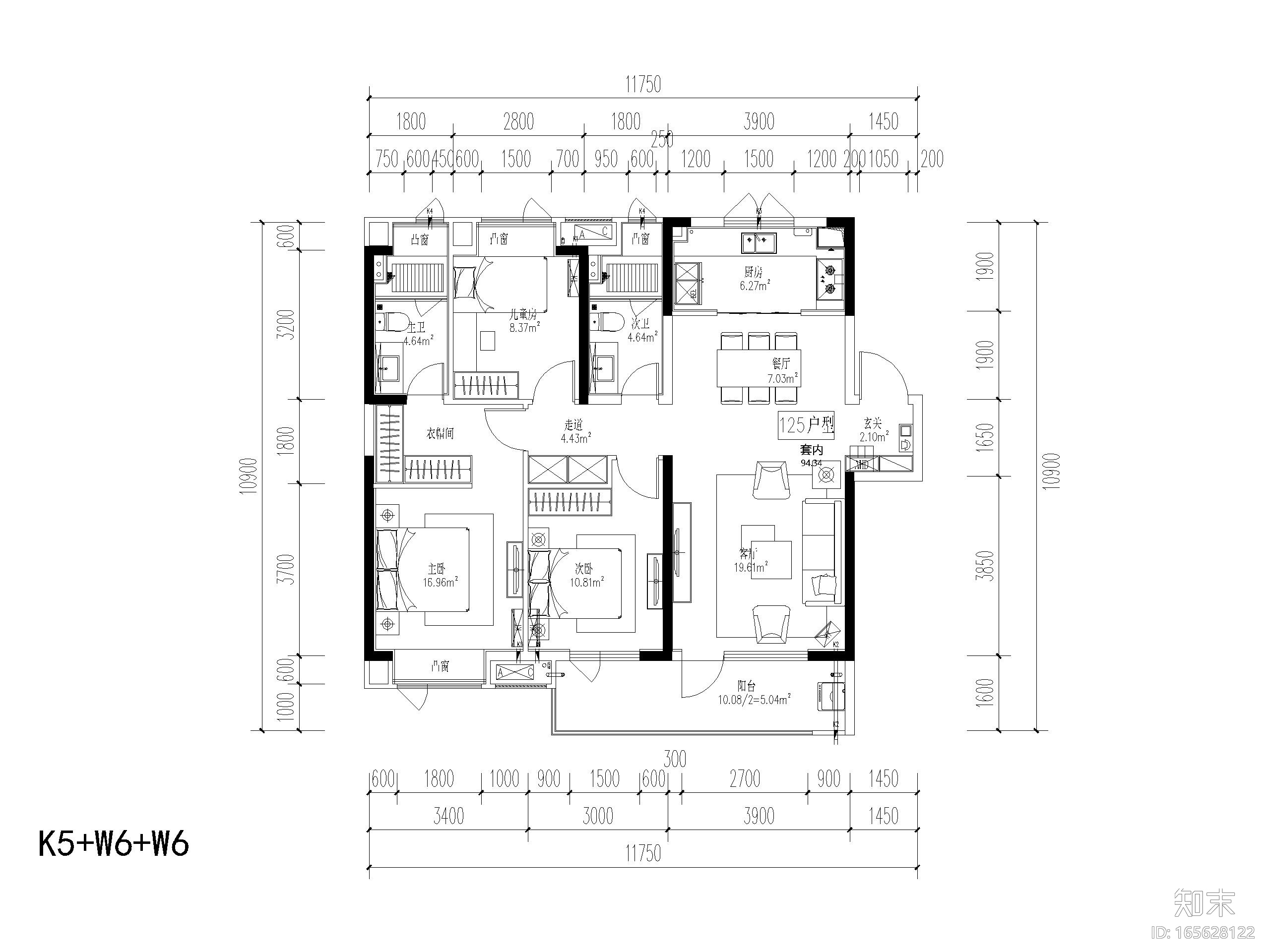
知名地产华中区域标准化户型CAD下载
ID: 165628122
复制
上传作者
699484143
699484143上传时间2020-07-02
文件大小1.27M
设计风格:其他
CAD版本:CAD2000
包含文件:CAD
授权普通
立即下载
收藏
分享
举报
相关推荐
综合
建筑
其他建筑
居住建筑
办公工业建筑
商业建筑
酒店民宿建筑
交通建筑
规划设计
古建
教育建筑


699484143上传时间2020-07-02
文件大小1.27M
设计风格:其他
CAD版本:CAD2000
包含文件:CAD
授权普通