1/6


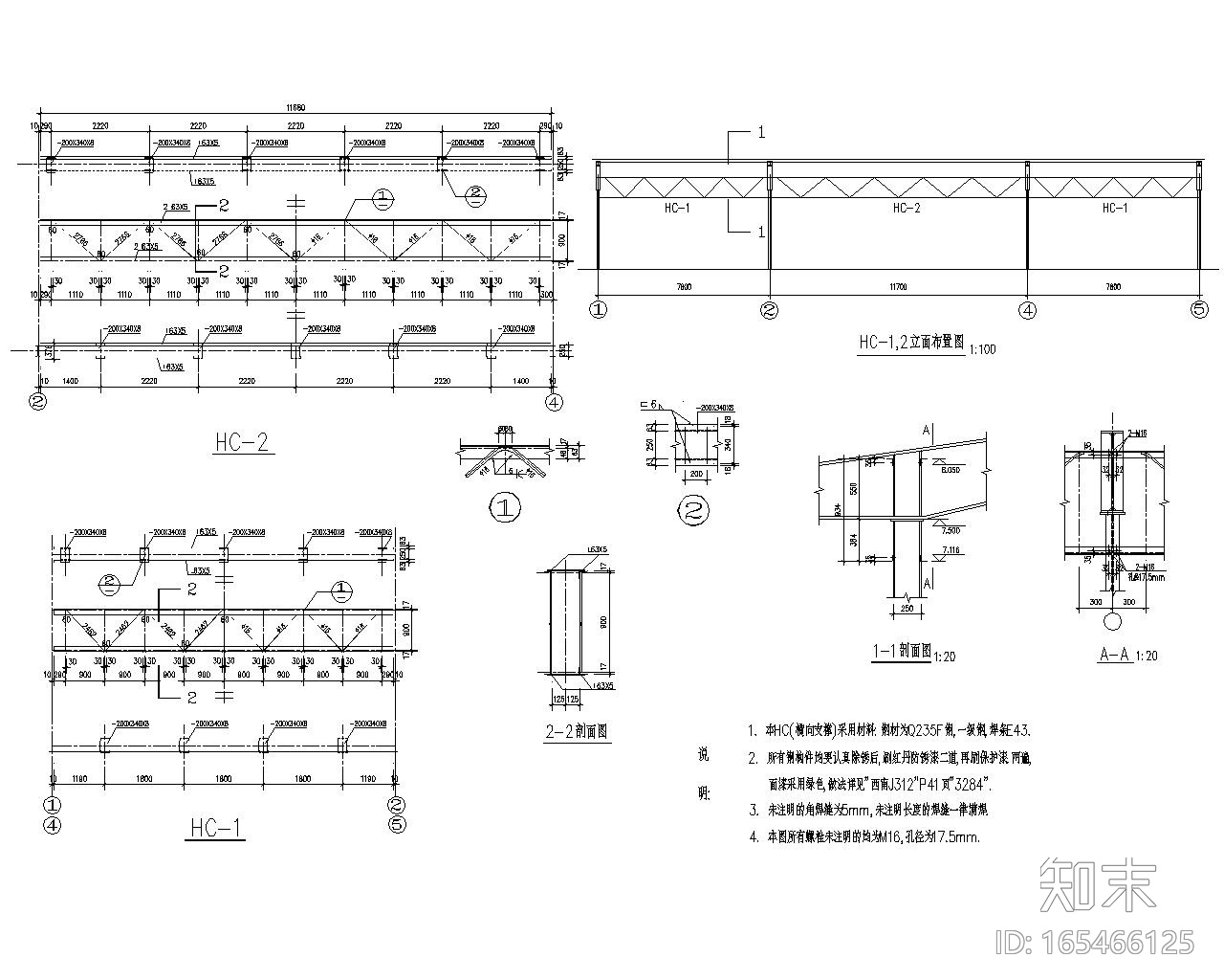
某体育场主看台雨棚结构(CAD)下载
ID: 165466125
复制
上传作者
323958392
323958392上传时间2020-07-01
文件大小1.33M
设计风格:其他
CAD版本:CAD2000
包含文件:CAD
授权普通
立即下载
收藏
分享
举报
相关推荐
综合
运动场
看台
网球场
篮球场
其他运动场地
操场
足球场
羽毛球场
高尔夫


323958392上传时间2020-07-01
文件大小1.33M
设计风格:其他
CAD版本:CAD2000
包含文件:CAD
授权普通