1/6


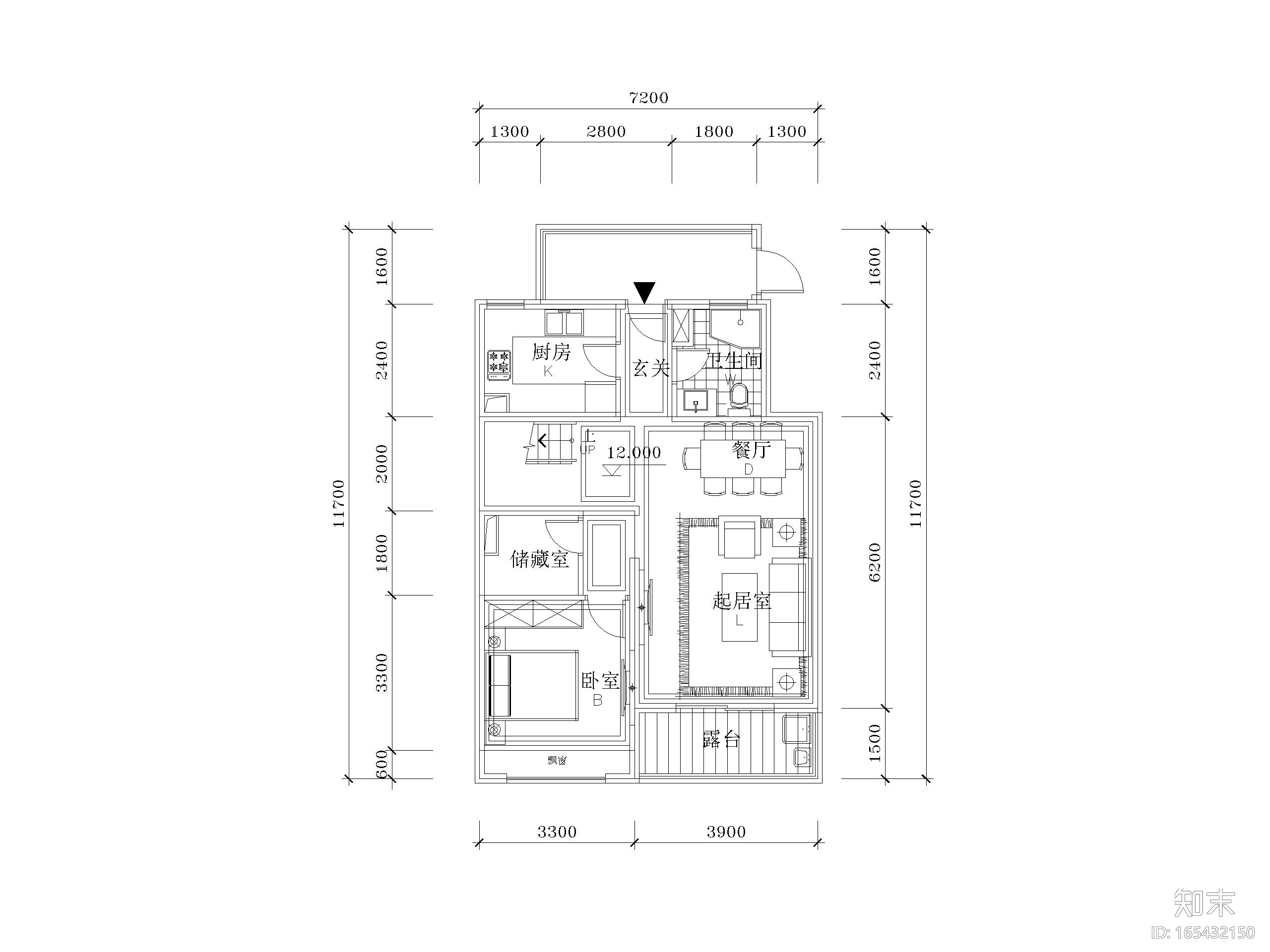
叠拼四房套内两开间户型图140.8+118.2+1...
ID: 165432150
复制
上传作者
273383491
273383491上传时间2020-06-30
文件大小0.29M
设计风格:其他
CAD版本:CAD2000
包含文件:CAD
授权普通
立即下载
收藏
分享
举报
相关推荐
综合
建筑
其他建筑
居住建筑
办公工业建筑
商业建筑
酒店民宿建筑
交通建筑
规划设计
古建
教育建筑


273383491上传时间2020-06-30
文件大小0.29M
设计风格:其他
CAD版本:CAD2000
包含文件:CAD
授权普通