1/3


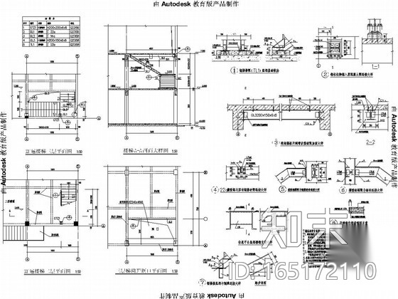
艺术楼室内加钢梯及屋顶钢结构CADCAD下载
ID: 165172110
复制
上传作者
513353675
513353675上传时间2020-06-28
文件大小0.46M
设计风格:其他
CAD版本:CAD2000
包含文件:CAD
授权普通
立即下载
收藏
分享
举报
相关推荐
综合
结构设计
混凝土结构
钢结构
幕墙结构
砌体结构
木结构
结构节点图
其他结构图纸


513353675上传时间2020-06-28
文件大小0.46M
设计风格:其他
CAD版本:CAD2000
包含文件:CAD
授权普通